Предлагается к продаже новый многофункциональный торговый центр
Россия, Краснодарский край, Новороссийск, Южный
Цена: 650 000 000 ₽
Прибыль: не указана
Выручка: не указана
Основные средства: 650 000 000 ₽
Материалы: н/п
Недвижимость: н/п
Год основания: 2026
Персонал: 1
Описание бизнеса
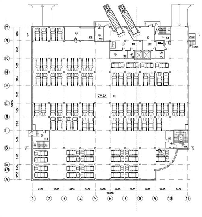
Предлагается к продаже новый многофункциональный торговый центр, расположенный в г. Новороссийск, мкр. Южный, пр. Дзержинского, 231. ??? Район с высокой плотностью населения один из самых высоким покупательским трафиком. Инфраструктура развитая жилая застройка, хорошая транспортная доступность и отсутствие крупных торговых конкурентов в непосредственной близости. ?? Площади: Общая проектная площадь: 14 000 м? Полезная коммерческая площадь: 12 500 м? Земельный участок: 50 соток (в собственности) ?? Архитектура и функционал: 2 надземных этажа — коммерческо-торговое назначение (готовы под ТЦ, офисы, фуд-корт, развлечения). 2 подземных этажа — паркинг на 300+ машиномест. ? Коммуникации (полностью подведены): ? Электроснабжение: 500 кВт (собственная ТП). ? Централизованное отопление от городских теплосетей (подведены). ? Центральное водоснабжение и канализация (подведены и подключены). ? Лифтовое оборудование: приобретены и готовы к монтажу современные пассажирские и грузовые лифты, эскалаторы. ?? Благоустройство: ведутся работы по озеленению и обустройству прилегающей территории — создание комфортной городской среды. ?? Сдача в эксплуатацию: II квартал 2026 года. ?? Поддержка арендаторов: готовы передать контакты проверенной управляющей компании из г. Ростов-на-Дону, специализирующейся на привлечении и удержании якорных и розничных арендаторов. ?? Стоимость: 650 млн ?. ?? идеально подходит для: 1. Стратегического инвестора, ищущего стабильный cash-flow от коммерческой недвижимости. 2. Ритейлеров крупной розничной сети для размещения флагманского объекта. 3. Инвестиционного фонда или девелоперов, ищущих объект с прогнозируемым доходом.
Подробная информация о бизнесе
- Персонал:
- 1
- Активы:
- Здание 14000 кв.м и Земельный участок 50 соток вид права собственноть
- Рынок и конкуренция:
- отсутствие крупных торговых конкурентов в непосредственной близости.
- Поддержка и обучение:
- Поддержка арендаторов: готовы передать контакты проверенной управляющей компании из г. Ростов-на-Дону, специализирующейся на привлечении и удержании якорных и розничных арендаторов.
- Причины продажи:
- Бизнес создавался с целью продажи
Связаться с продавцом
Продавец бизнеса
Сергей
















