Продаётся торгово-офисное здание
Украина, , Луганская область, Луганск
Цена: 234 000 000 ₽
Прибыль: не указана
Выручка: не указана
Основные средства: н/п
Материалы: н/п
Недвижимость: н/п
Год основания: не указан
Персонал: не указан
Описание бизнеса
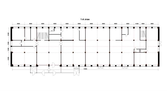
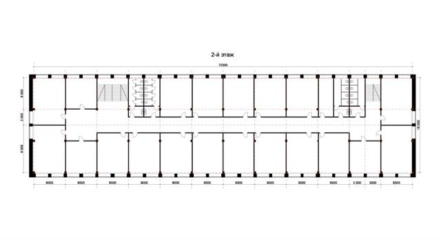
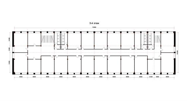
Продаётся 4-х этажное здание с большим подвалом в центре города. Площадь здания – 6276,9 кв. м, площадь земли – 0,1937 га. Здание после реконструкции, железобетонные перекрытия, внутренняя отделка произведена под ключ, этажи поделены на просторные кабинеты, проведены линии МГТС и оптоволоконная связь. Автоматическая пожарная сигнализация. Средняя высота потолка: 3,5м. На первом этаже расположены помещения большой площади с отдельными входами, что дает возможность использовать их под магазины. Большой холл, просторная лестница, широкие коридоры отделаны современными материалами (плитка, МДФ). На 2-4 этажах расположены кабинеты, различной планировки площадью от 18 кв.м. до 150 кв.м. Металлопластиковые окна и двери. Отопление: собственное (мини-котельная с двумя газовыми котлами мощностью 100 кВт). Водоснабжение и канализация: подключены к городским сетям. Электроснабжение: централизованное. Возможное использование объекта: магазины, офисы, банк, торгово-выставочный центр.
Подробная информация о бизнесе
- Вебсайт:
- www.lincor.com.ua
Продавец бизнеса
Дмитрий














