Земельный участок продажа под строительство.
Россия, Тверская область, Тверь
Цена: не указана
Прибыль: не указана
Выручка: не указана
Основные средства: н/п
Материалы: н/п
Недвижимость: н/п
Год основания: не указан
Персонал: не указан
Описание бизнеса
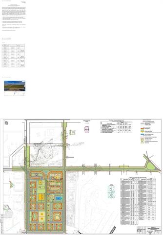
Продажа 14-ти земельных участков под строительство многоквартирных жилых домов. Общая площадь продаваемых участков (20,97 Га) Земельный участок расположен: Тверской области, г. Тверь, м-р Южный, Московского р- на, Категория земли: Земля населённых пунктов Разрешённое использование: Для жилой застройки Функциональная зона: Многоэтажная жилая застройка 10-17 этажей Документация: Утвержденный проект планировки территории (ППТ), Постановление № 1536 от 18.12.2019. Площадь жилого фонда: 234 288 кв.м - продаваемых площадей Цена: Покупка 1- (одного) гектара рассчитывается по 250 000 руб. за 1- (одну) сотку. Покупка 5- (пяти) гектар рассчитывается по 220 000 руб. за 1-(одну) сотку. Покупка 10- (десяти) гектар рассчитывается по 190 000 руб. за 1-(одну) сотку. Покупка 15- (пятнадцати) гектар рассчитывается по 170 000 руб. за 1-(одну) сотку. Покупка 20- (двадцати) гектар рассчитывается по 150 000 руб. за 1-(одну) сотку. *Условия покупки и форма расчета по приобретению земельного участка рассматривается индивидуально. .
Продавец бизнеса
Имя не указано




