Продается производственный комплекс в Кисловодске, общей пл. 5 412м.
Россия, , Ставропольский край, Кисловодск
Цена: 585 000 000 ₽
Прибыль: не указана
Выручка: не указана
Основные средства: н/п
Материалы: н/п
Недвижимость: н/п
Год основания: не указан
Персонал: не указан
Описание бизнеса
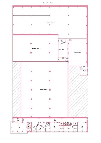
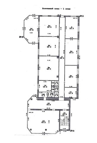
Продается производственный комплекс в Кисловодске, общей площадью 5 411,7м.кв. Три отдельно стоящих здания. Литер А, площадь 4592,1 м.кв., 3-х этажное, административно- производственное. Литер Д, площадь 763 м.кв., 2-х этажное, офисное. Литер Г, площадь 56,6 м.кв., 1 этажное здание, гараж. Земельный участок 12 783м.кв. (1,27 Га). Земля и здания в собственности. Год постройки 2009. Здания современные, качественная дизайнерская отделка. Собственная котельная. Трансформаторная подстанция мощностью 1 МегаВат. Здания оборудованы системами ОПС, СКУД, СКС, ТВ, видеонаблюдения. Во всех помещениях установлены системы вентиляции и кондиционирования. Территория полностью благоустроена, огорожена забором. Идеально подходит под размещение любого производства, либо торгового предприятия. Адрес: г. Кисловодск, ул. Седлогорская 11. Цена: 260 000 000р.
Подробная информация о бизнесе
- Причины продажи:
- Смена деятельности
- Вебсайт:
- www.sites.google.com/site/kmvoffice/
Продавец бизнеса
Александр
















