Topгoвo-cклaдcкoй кoмплeкc нa Kaмчaткe
Россия, Камчатский край, Петропавловск-Камчатский
Цена: 195 000 000 ₽
Прибыль: не указана
Выручка: не указана
Основные средства: н/п
Материалы: н/п
Недвижимость: н/п
Год основания: 2012
Персонал: не указан
Описание бизнеса
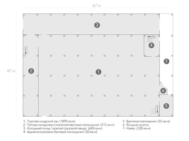
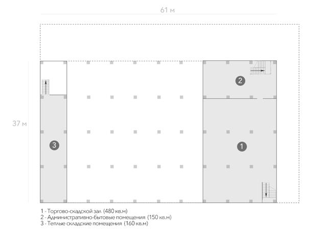
ОБЩИЕ ДАННЫЕ ОБЪЕКТА Современный торгово-складской комплекс класса В+, введен в эксплуатацию в 2012 г. Общая площадь: более 3800 кв.м, из которых около 3200 кв.м подключены к отоплению. Этажность здания: 1 этаж (с двумя антресолями). Помимо самой торгово- складской зоны в здании также расположены административные и бытовые помещения общей площадью 270 кв.м, которые включают в себя: офисные кабинеты, серверную, комнату приема пищи, комнату товароведа, раздевалки для персонала, санузлы, пост охраны и др. Здание находится в собственности. Все документы имеются. РАЗМЕРЫ И ХАРАКТЕРИСТИКИ Внешние размеры здания (без учета пандуса и навеса): 61 м х 37 м. Максимальная высота здания: 11 м. Средняя высота потолков - от 8 м, в районе антресолей - 4,5 м. Конструкция здания: металлокаркас обшитый сэндвич-панелями толщиной 100 мм с огнестойким утеплителем (Юж.Корея). Размер пролетов между колоннами: по длине здания - 6 м, по ширине - 9 м. Упрочненный бетонный пол с антипылевым покрытием. Наружние двери, ворота, а также окна - европейского производства. Имеется крытый пандус с двумя погрузочно- разгрузочными терминалами, оборудованными гидравлическими столами. КОММУНИКАЦИИ И СИСТЕМЫ Комплекс подключен к централизованной сети энергоснабжения (50 кВт), локальным системам водоснабжения, отопления и канализации. Энергосистема комплекса оборудована источником бесперебойного питания (60 кВт). Также имеется источник автоматизированного резервного энергопитания - дизель- генератор на 80 кВт. В здании установлены системы пожаротушения и видеонаблюдения, имеется охранная и пожарная сигнализации. Внутреннее освещение здания - светодиодные лампы с низким уровнем энергопотребления. Телефонная связь и интернет. ЗЕМЕЛЬНЫЙ УЧАСТОК В состав комплекса также входит земельный участок общей площадью около 9 га. На участке помимо здания имеются пожарные пруды и две большие площадки с бетонным покрытием. Первая площадка, общей площадью более 2000 кв.м, вплотную примыкает к зданию со стороны пандуса и может использоваться для разгрузки-погрузки, а также для хранения грузов под открытым небом. Вторая площадка, общей площадью около 3000 кв.м, расположена непосредственно перед фасадом здания и расчитанна на стоянку 100- 120 автомобилей. Земельный участок в собственности. ОБОРУДОВАНИЕ И ТЕХНИКА Помимо недвижимого имущества в состав торгово-складского комплекса входит: * Система стеллажей, расчитанная на хранение широкого спектра грузов и экспозицию любых типов товаров. Высота стеллажей: 6 м (в районе антресолей: 3-4,5 м). Расчетная нагрузка на стеллажи: 800- 1000 кг на одно паллетоместо; * Единая компьюторизированная система учета оборота товаров и грузов; * Самоходный штабелер OTTO- KURBACH (грузопод. - 1500 кг, высота подъема - 5,5 м); * Ричтрак LEMA (грузопод. - 1400 кг, высота подъема - 7 м); * Вилочный электропогрузчик CHERRY (грузопод. - 2000 кг, высота подъема - 3 м). Звoнитe в paбoчee вpeмя пo Mocкoвcкoмy вpeмeни.
Подробная информация о бизнесе
- Активы:
- Современный торгово-складской комплекс класса В+, введен в эксплуатацию в 2012 г. Общая площадь: более 3800 кв.м, из которых около 3200 кв.м подключены к отоплению. Этажность здания: 1 этаж (с двумя антресолями). Помимо самой торгово-складской зоны в здании также расположены административные и бытовые помещения общей площадью 270 кв.м, которые включают в себя: офисные кабинеты, серверную, комнату приема пищи, комнату
- Возможности роста:
- Торгово-складской комплекс находится между двумя крупнейшими городами Камчатского края, что делает его месторасположение удобным для ведения любого вида деятельности.В 100 метрах от комплекса проходит главная автотрасса региона, связывающая два крупнейших города, а также находящиеся в них Морской торговый порт и Аэропорт. Этот фактор, в свою очередь, значительно облегчает процесс доставки и отправки любых грузов
- Вебсайт:
- https://www.kamsklad.ru
Связаться с продавцом
Продавец бизнеса
Иван Николаевич






