Продам БЦ Ариал (Ст.м.Гагаринская)
Россия, Новосибирск
Цена: 110 500 000 ₽
Прибыль: не указана
Выручка: 32 500 000 ₽
Основные средства: н/п
Материалы: н/п
Недвижимость: н/п
Год основания: не указан
Персонал: 5
Описание бизнеса
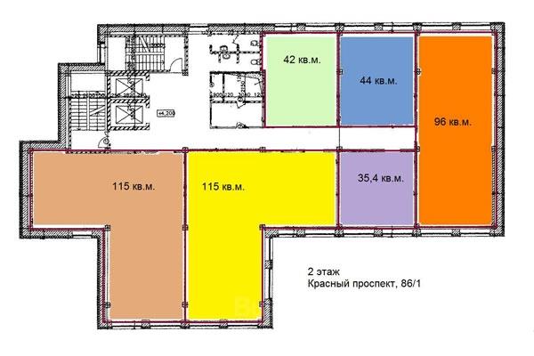
Предлагается к продаже Бизнес-Центр «АРИАЛ», расположенный по адресу Красный проспект, 86/1, в 2-х минутах ходьбы от остановки метро «Гагаринская». заполнен на 100%. Год постройки - 1989/2008, 9-этажное здание + пристройка. Общая площадь застройки – 4 043,0 кв.м., полезная (под офисы) - 3 017,7 кв.м. Состояние – хорошее. Земельный участок – 1 826 кв.м. Описание объекта: Материал: - Стены – кирпич - Кровля – Мягкая/металл - Перекрытия – ж/б - Остекление – Пластиковые окна - Наружная отделка – вентилируемый фасад (с одной стороны облицовано плиткой из керамогранита, с 3-х сторон - металлические кассеты с полимерным покрытием). Внутренняя отделка включает: - потолки типа «Армстронг» со светильниками; - стены - обои под окраску либо декоративная штукатурка; - на полу керамогранитная плитка или линолеум коммерческий. - В санузлах - кафель и керамическая плитка. - Перила лестницы - металлические. - Вся отделка здесь в отличном состоянии. - Имеются водонагреватели. Венткамера и машинное отделение лифтов на 9-ом этаже. - Батареи - секционные биметаллические (или алюминиевые). - В пристройке находится электрощитовая, ИТП, трансформаторы. - В здании имеются 2 лифта пассажирских грузоподъемностью на 1000 и 500 кг. - Установлены приборы учёта холодной воды. - Здание оборудовано датчиками пожарной сигнализации, предусмотрена ручная пож.сигнализация - Охрана - Видеонаблюдение, сигнализация Коммуникации: - Отопление – центральное - Вентиляция – принудительная - Электроснабжение, водоснабжение - Телефон (200 номеров), Интернет Цена – 210 000 000 рублей, в т.ч. НДС 18%.
Подробная информация о бизнесе
- Материалы и запасы:
- Включены в стоимость
- Недвижимость:
- Включена в стоимость
- Персонал:
- 5
- Причины продажи:
- непрофильные активы
- Вебсайт:
- www.arleasing.ru
Продавец бизнеса
Алексей










