Продам завод в Венгрии (бывший шарико-подшипниковый завод)
Венгрия, Debrecen
Цена: не указана
Прибыль: не указана
Выручка: не указана
Основные средства: н/п
Материалы: н/п
Недвижимость: н/п
Год основания: не указан
Персонал: не указан
Описание бизнеса
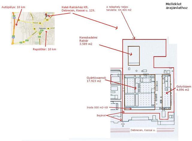
Год постройки: 1967. Местонахождение завода: Венгрия, г. Дебрецен, ул. Кашшаи 129. (промышленная зона) На 8 км от центра города, возле трассы № 4., по ж/д линии Будапешт-Захонь (Чоп-Украина). Расстояние до автобама и аэропорта 10 км. Подход автомобильным транспортом по асфальтной дороге или ж/д (имеется собственная боковая линия). Автобусная остановка на 300 м. Стоянка для автомобилей обеспечена на территории завода. Территория завода огорожена, под охраной, имеются камеры безопасности. Инфраструктура обеспечена (вода, газ, канализация, електроенергия и т.п.) Территория завода: 64.405 м2 (включая надстройки, функциональные мостовые краны-26 шт.). Надстройки: шаровое главное здание - 2.809 м2, шаровое здание - 4.896 м2, цех (главное здание) - 4.032 м2, большой цех - 17.923 м2, склад - 3.589 м2, общая территория - здания, цехи: 26.408 м2, здания обслуживания - 7.672 м2. Цена: 4.450.000 Евро + 27% НДС
Продавец бизнеса
Роберт
