Продаётся помещение с действующим бизнесом - фитнес-центр.
Россия, Омск
Цена: 292 500 000 ₽
Прибыль: не указана
Выручка: не указана
Основные средства: н/п
Материалы: н/п
Недвижимость: н/п
Год основания: не указан
Персонал: не указан
Описание бизнеса
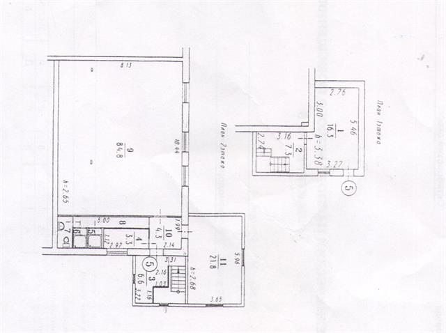
Продаётся помещение с действующим бизнесом (фитнес-центр) в 2-этажном административном здании по ул. 1-я Железнодорожная, д. 40, корп. 1, ОАО г. Омска. Общая площадь - 151,6 кв.м., фитнес зал - 84,8 кв.м., подсобная площадь - 66, 8 кв.м., площадь 1 зтажа - 23,6 кв.м., площадь 2 этажа - 128,0 кв.м. Окна ПВХ, 2 душа, 1 туалет. Здание панельное. Возможна ипотека. Имеется вертикальный солярий, кабинет массажиста, большой зеркальный прохладный зал, разнообразное фитнес- оборудование. 4 500 000 руб.
Подробная информация о бизнесе
- Недвижимость:
- Включена в стоимость
- Активы:
- Общая площадь продаваемого помещения - 151,6 кв.м.
Продавец бизнеса
Имя не указано








