Участки под многоэтажную жилую застройку в Ногинском районе
Россия, , Московская область, Зеленый
Цена: 325 000 ₽
Прибыль: не указана
Выручка: не указана
Основные средства: н/п
Материалы: н/п
Недвижимость: н/п
Год основания: не указан
Персонал: не указан
Описание бизнеса
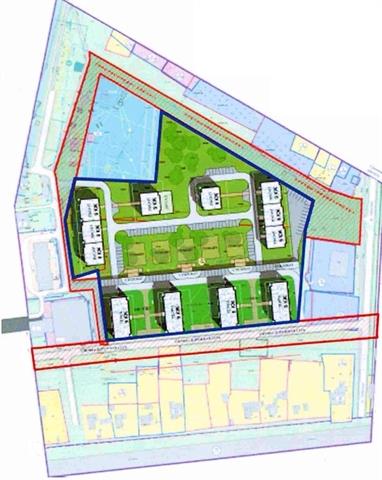
Продажа двух участков в Ногинском районе Московской области, 20 км от МКАД, под жилую многоэтажную застройку, Горьковское шоссе, п. Зеленый. Первый участок - 3, 16 ГА, право аренды участка на 49 лет, возможен перевод в ЖС, с жилым строительством, с ограничением до 4 этажей (сельское поселение). Второй участок рядом - 2, 54 ГА, право аренды участка на 49 лет, возможен перевод в ЖС с многоэтажным жилым строительством до 14 этажей (городское поселение) Земля в собственности, цена за сотку - 5000 долларов (300000 рублей за сотку). Так же имеется готовый инвест проект на многоэтажную жилую застройку в городском поселении Обухово, в 27 км от МКАД, жилые многоэтажные дома Терра - 4 шт (первый уровень). и дома Яхонт (второй уровень) - 8 штук. В инвест проекте имеется пристроенный к жилому дому детский сад (экономия для прокладки коммуникаций), двухуровневый подземный гараж для автомобилей. По согласованию с местной Администрацией заказчик может получить разрешение на строительство еще 3 домов, площадь - 34000 кв. м., цена - 100 долларов за метр (торг), строительство уже можно начинать, имеется презентация, удобное транспортное сообщение, экологически чистое место, Олег, подробности по телефону 89295623009
Продавец бизнеса
Наталия Викторовна












