Продажа БЦ класса А в Хамовниках
Россия, , Москва, Ефремова 10
Цена: 3 900 000 000 ₽
Прибыль: не указана
Выручка: не указана
Основные средства: н/п
Материалы: н/п
Недвижимость: н/п
Год основания: не указан
Персонал: не указан
Описание бизнеса
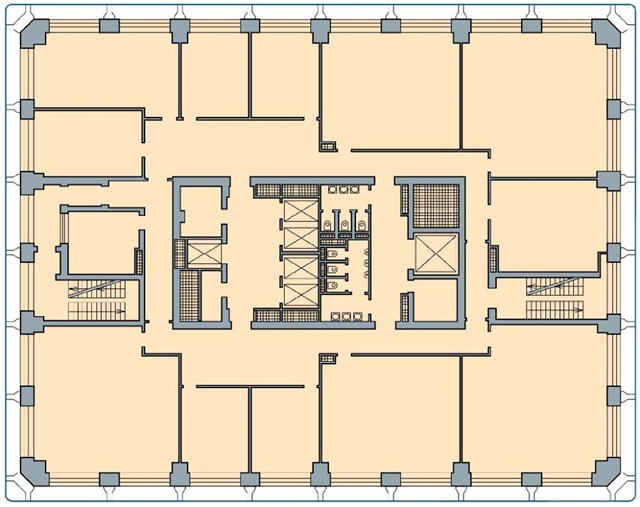
БЦ «Ефремова 10» (11 360 м2) расположен в самом престижном районе центра Москвы –Хамовники. Район обладает высокоразвитой инфраструктурой и является одним из наиболее благоприятных с точки зрения экологии районов столичного центра. Здесь насчитывается сразу нескольких зелёных зон вроде Нескучного сада, Лужников и парка имени Мандельштама. БЦ «Ефремова 10» –это современное, качественное 12-ти этажное офисное здание, общей площадью 11 360,2 м2. Общая площадь здания: 11 360,2 м2. Количество этажей: 12 (наземных). Средняя площадь этажа: 900 м2. Высота потолков: 4 метра. Лифтовое оборудование: kone: 5 + 1 (vip). Общая площадь земельного участка: 0,52 Га. Срок аренды земельного участка: до 2061 года. Парковка: 105 м/м наземная + 9 м/м (vip). Одной из привлекательных особенностей БЦ «Ефремова 10» является наличие огороженной обширной прилегающей территории. Здание расположено на земельном участке общей площадью 5 243кв.м, в то время как пятно застройки составляет порядка 1 500 м2. Таким образом, прилегающая территория составляет более 3 700 кв.м, что позволяет комфортно разместить 105 автомобилей и объекты собственной инфраструктуры. Дополнительным преимуществом является наличие vip- гаража на 9 автомобилей встроенного в здание. Арендатор — один из крупнейших в России производителей подвижного состава для рельсового транспорта. Входит в число 10 крупнейших в мире компаний транспортного машиностроения.Здание было полностью реконструировано в 2013 году с применением передовых строительных технологий и материалов и соответствует наивысшим требованиям, применяемым к офисным зданиям класса «А».
Подробная информация о бизнесе
- Вебсайт:
- http://wsavoi.realtysystems.ru
Продавец бизнеса
Андрей Николаевич







