Инвест проект на многоэтажную жилую застройку в Ногинском районе
Россия, , Московская область, Обухово
Цена: не указана
Прибыль: не указана
Выручка: не указана
Основные средства: н/п
Материалы: н/п
Недвижимость: н/п
Год основания: не указан
Персонал: не указан
Описание бизнеса
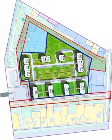
Продажа инвест проекта на строительство жилых многоэтажных домов в 27 км от МКАД, Горьковское шоссе, рядом г. Балашиха, Старая Купавна, Ногинский район, между Обухово и Балобаново. Земельный участок с ордером на строительство 3 ГА. В проекте дома Терра - 4 шт., Яххонт - 8 шт., по согласию предельных показателей заказчик может получить в местной Администрации право на строительство еще 3 домов Яххонт. Имеются два двухуровневых подземных гаража, пристроенный к жилому дому детсад (подключен к инженерии жилого дома для экономии в прокладке коммуникаций, двухуровневый гараж для автомобилей). Первый уровень (вровень с прилегающей территорией), стилобат и дома Терра. Второй уровень - дома Яхонт. Всего 34000 кв. м., цена за кв. м. - 100 долларов (торг), строительство можно начинать в любое время. Так же имеются еще два участка под жилую застройку в поселке Зеленый, 2,54 ГА под жилую застройку, в 14 этажей (городское поселение, аренда на 49 лет, возможен перевод в ЖС) и 3,16 ГА под 4 этажа (сельское поселение, аренда на 49 лет, возможен перевод в ЖС) цена за сотку земли - 5000 долларов, подробности по телефону, есть презентация, Наталия Викторовна
Продавец бизнеса
Наталия Викторовна










