База отдыха в Клинском районе
Россия, Московская область, Клин
Цена: 460 000 000 ₽
Прибыль: не указана
Выручка: не указана
Основные средства: н/п
Материалы: н/п
Недвижимость: н/п
Год основания: не указан
Персонал: не указан
Описание бизнеса
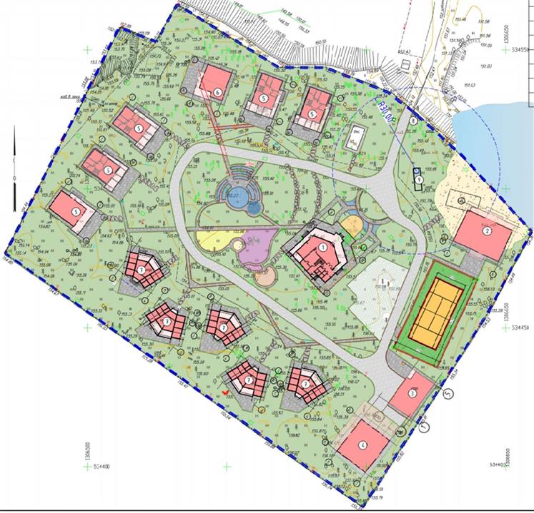
Продается загородный комплекс — 11 коттеджей + ресторан площадью 2667 м2 на земельном участке 20 000 м2 в Клинском районе (рядом с заповедником Завидово). Полностью готовый к эксплуатации комплекс идеально подходит для гостиничного бизнеса, базы отдыха, корпоративных мероприятий или загородного клуба — в окружении природы. Основные преимущества Расположение: экологически чистая зона, всего в часе езды на автомобиле от Москвы, привлекательность для любителей природы и активного отдыха. Комплектация: 11 коттеджей различной площади, полностью меблированы и оборудованы для комфортного проживания гостей. Ресторан: вместительный банкетный зал, кухня профессионального уровня, зона для барбекю/терраса — готово для проведения свадеб, юбилеев, семинаров и корпоративов. Гибкие планировки для размещения как краткосрочных гостей, так и долгосрочных арендаторов. Инфраструктура: парковка, подъездная дорога, автономные коммуникации (водоснабжение/отопление/электричество/канализация). Перспективы использования: гостиница/мини-курорт, event-пространство, коворкинг в формате загородного ретрита, оздоровительная база, корпоративный центр.
Подробная информация о бизнесе
- Активы:
- Земельный участок площадью 20 000 м2, 11 коттеджей, ресторан и хозяйственные постройки.
- Возможности роста:
- Прогнозируемая доходность 4800000 рублей в месяц.
Связаться с продавцом
Продавец бизнеса
Бест Юрий




















