уникальный участок под создание эко курорта и коттеджной застройки
Россия, Московская область, Волоколамск, деревня Жилые горы
Цена: 65 000 000 ₽
Прибыль: не указана
Выручка: не указана
Основные средства: 25 000 000 ₽
Материалы: н/п
Недвижимость: н/п
Год основания: 2022
Персонал: не указан
Описание бизнеса
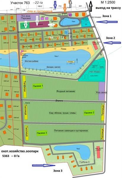
Предлагаю уникальный панорамный земельный участок как бизнес проект - для создания Эко курорта / коттеджный поселок /,несколько турбаз агротуризм + доходные дома., охот.хозяйство .и т.д…...... Кадастровые номера расположения: 50:06:0050501:762 --20га 50:06:0050501:763 ----22га. 50:06:0000000:5363 -----8га 1-Участки 20+22 + 8га всего 50га, которые расположены в центре закрытой изолированной долины площадью- 80 га с двумя уклонами, один от деревни, другой от Гос леса к 3- каскадным озерам площадью более 25.000 кв.м, расположенные в низине. Долина П-образно окружена вековым государственным лесом более 500га. Никто и ни когда не сможет что либо построить аналогичное , нарушить тишину, покой и изолированность. С любого места отличная панорама на озера и окружающий лес. Склоны хорошо освещены солнцем. 2- Рядом с участками проходит линия магистрального газа и 3х фазное электричество 10 мгвт. трансформатор .см план газификации с возможностью подключения любого количества. . 3- В 100 метрах проходит асфальтированное Волочановское шоссе, от которого к участкам подходят 2 подьезные грунтовые дороги, с востока и запада. В середине деревни автобусная остановка в Шаховскую- ЖД и Авто станции. По ген.плану развития района скоро планируется развязка с прямым выездом на новую ригу, минуя шаховскую. см. ген.план района. 4- В трех километрах от долины ПГТ. Шаховская. Хороший ухоженный подмосковный городок с полной инфраструктурой. Супермаркеты. дворец спорта. бассейн, кинотеатр ,боулинг. ледовый каток, мед. центры. косметология. спа. теннисные корты и многое другое, к чему привык житель мегаполиса. Чего нет в полном объеме в районных центрах ::Истры, Волоколамска, Звенигорода ,Можайска. Клина и т.д . см. расположение долины и ближайшего окружения на ген. плане района. 5- До долины можно добраться на машине, по Новой риге , лучшей скоростной подмосковной трассе по прямой как трамвай. 1-час в пути от МКАД. маршрутка 1.3ч. электричка- 2.3 часа автобус-2.3 часа. Нет ни каких боковых дорог на которых все и теряют время проезда. Что это значит- , например: вам понравился участок в районе Клязмы или Пироговки. Да. они по радиусу на 26 км от МКАД, но до них 1.3 часа днем, а в час пик еще больше. Щереметьево рядом. самолеты летают каждые 2 минуты. рев и сброс топлива вам на голову . стоимость сотки земли 1 млн. экологии ноль. аналогично и другие направления по радиусу вокруг МКАД и аэродромов. Пример 2: район Истры или Звенигорода, пролетел по новой риге, потом боковая дорога 10-20-30км в итоге на свой участок приедите за 1- 1.3 часа. стоимость сотки начинается от 300. рядом куча поселков. Инфраструктура слабая. разбросанная по району. нужно ехать. Пример 3 любой поселок или участок на удалении 50-80-100 км по Новой риге. долетел. Потом съездная боковая дорога.10-20-30 км, в зависимости от удаленности от трассы у вас получится 1 -1.3 ч в пути. стоимость от 200 за сотку. инфраструктура ноль. все вези из Москвы. и так по многим направлениям и участкам 1-1.3 -2ч и более. Пример 4 Можайское направление. Продается много участков, но добираться до них больше часа, Сделать на них что то подобное возможно, но какая привлекательность данного места? Нет панорамной долины, нет своих озер. нет хорошей полной близкой инфраструктуры и т.д Когда начинаешь сравнивать все критерии аналогичного. то одни минусы, и так по большинству участков по МО. Наша долина 123 км от МКАД. Но когда начинаешь сравнивать сколько времени добираться. до участка, а не его расположение по радиусу от МКАД, то мало какие участки или поселки по времени выигрывают ,а по набору всех опций: экология. девственная природа. свои озера с возможностью строится у воды, в окружении заповедных лесов, рядом полная .инфраструктура и т. д нет равных. 6- Участок имеет статус сельхозпроизводство- сх-3, поэтому и сохранился в первозданном виде , есть возможность перевести в СНТ.ДНП или другие назначения земли. В зависимости как развивать данную долину и что строить. .На текущий момент ГПЗУ участков позволяет строить глемпинги, заниматься любым фермерством :пчеловодством . рыбоводством, ягодный бизнес т.д, Построить родовое поместье, сделать на участках свои пруды, т.е осуществить свое любое желание. Тишина , покой и изолированность в долине. 7- В окружающем П-образно долину вековом лесу полно грибов, ягод, Кабан. Лось .Фазан и т.д. Нет собирателей и нет ни каких коттеджных поселков и поселений рядом, и никто их не построит в долине никогда. Нет скученности и авто пробок на дорогах, как в других районах МО. 8- Помощь фермерам со стороны государства, гранды, субсидии, льготное кредитование и другие виды поддержки. 9- Данную территорию освоения и застройки можно расширить ,за счет приобретения смежных земельных участков и взятие в аренду гос. леса и маштабировать любые проекты. 10. Есть экономические расчеты затрат в освоении земельных участков. Сроки окупаемости вложений и выход на прибыль. Можно скооперироваться нескольким собственникам создав клуб инвесторов- единомышленников и совместно развивать данную территорию. У меня есть действующее КФХ . Живу постоянно рядом. Более подробно расскажу и покажу перспективы развития данной территории. Цена земли обсуждаемая и не главная. Продается большой многогранный маштабируемый инвест проект и возможности. На видео ролике показываю один из вариантов развития долины.
Подробная информация о бизнесе
- Активы:
- построена зона 1 под турбазу и выкопан пруд в зоне 2, сделаны подьезнные дороги. на участке 763 подключено 15 квт. Участки 762 и 763 газ у границы.
- Рынок и конкуренция:
- По сочетанию всех факторов нет равных.
- Возможности роста:
- Маштабирование проекта за счет приобретения других участков и аренды гос.леса
- Поддержка и обучение:
- Окажу поддержку и участие в этом проекте.
- Причины продажи:
- нужен инвестор с головой.
Продавец бизнеса
Григорюк Константин Леонидович




















