Продажа торгового центра в г. Прокопьевск
Россия, Кадников, Кемеровская область, Кемерово
Цена: не указана
Прибыль: не указана
Выручка: не указана
Основные средства: н/п
Материалы: н/п
Недвижимость: н/п
Год основания: не указан
Персонал: не указан
Описание бизнеса
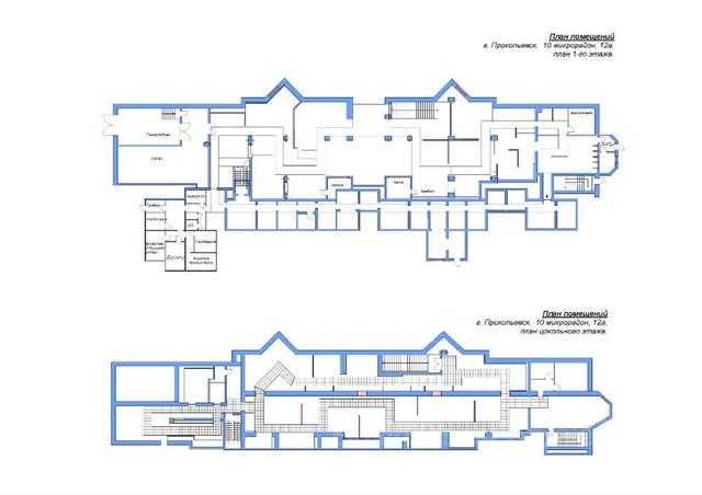
Объект находится в жилом массиве города. Торговый центр в хорошем состоянии как внешне так и внутренне. Возможно использование под любые виды торговли: продуктовый магазин (первый этаж), мебельный центр, бытовая техника. Этажность:1 этаж + цоколь. Аренднопригодная площадь: 1500 кв.м. Паркинг: 50 машиномест. Стабильный доход от аренды. Хорошее снижение цены.
Подробная информация о бизнесе
- Вебсайт:
- http://www.regionalcenter2.ru/item1000.html?c=2&p=1
Продавец бизнеса
Имя не указано

_22-l.jpg)
_22-l.jpg)