Хостел (готовый бизнес) срочная продажа
Россия, , Казань, ул. Жуковского, д. 23
Цена: 1 885 000 ₽
Прибыль: 2 437 500 ₽
Выручка: 7 312 500 ₽
Основные средства: н/п
Материалы: н/п
Недвижимость: н/п
Год основания: не указан
Персонал: не указан
Описание бизнеса
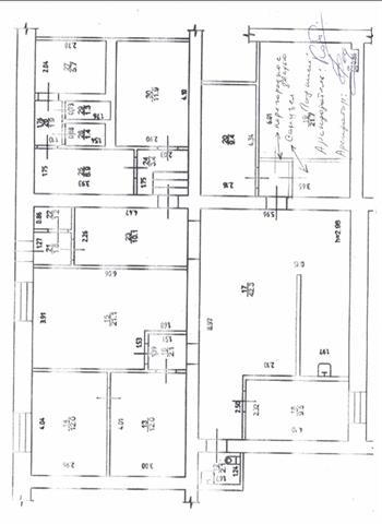
Помещение 180 кв.м., расположено по адресу ул. Жуковского. Аренда напрямую от собственника. Вместимость 34 человека: всего 6 номеров (8 местный, 6+4 разделенные перегородкой с дверью, 6-местный, два 2 двухместных номера (с диванами , которые номера идеально подойдут семьям с детьми), администраторская 2 двухместная), а также: сауна, душевые, 2 отдельных туалета, гостиная, кухня, ресепшн и раздевалка, подсобное помещение. Начиная с открытия и по сегодняшний день непрерывно работает рекламная кампания, нацеленная на продвижение и оптимизацию сайта в поисковых системах, раскрученная группа в соц. сетях, хостел зарегистрирован во всех системах бронирования (booking, hostelworld, hostelsclub ,tvil, и т.д.), высокие рейтинги на сайтах бронирования, а также высокая клиентская лояльность, обусловленная отличными отзывами о хостеле и повторными поселениями и бронями. Отработана система привлечения туристов (индивидуальная и групповая по 20-30 человек). Сотрудничество с экскурсионными агентствами, организаторами праздников и мероприятий. Налажена система скидок в ближайшие кафе, рестораны, бары, кальянные и др. Загруженность 60-80%. В высокий сезон* возрастает до 100%. (*летние месяцы, зимний период праздников, детские и студенческие каникулы, крупные выставки, семинары и проч. Мероприятия в городе) Среднемесячные обороты 300 000 - 350 000руб, Среднемесячная прибыль 100 000 - 140 000 руб. Максимально возможная выручка в месяц – 525 000 руб. В стоимость продажи входят: • Все материальные и нематериальные активы (ремонт, мебель, техника и т.д.); • Наработанная клиентская база с положительной динамикой клиентской лояльности; • Специально разработанный фирменный стиль (название, логотип, листовки, визитки); • Собственный бренд (с возможностью дальнейшего лицензирования); • Все права на сайт и домен, а также все интернет площадки по бронированию (стратегия продвижения на ближайший год); • Подробные рекомендации по развитию и продвижению хостела (возможность оказания поддержки на протяжении первых месяцев работы нового владельца, совместная разработка плана дальнейшего продвижения и проч.). Варианты выкупа доли и дистанционного ведения бизнеса не предлагать. СРОЧНАЯ ПРОДАЖА!
Подробная информация о бизнесе
- Вебсайт:
- http://gphostel.ru/
Продавец бизнеса
Наталия










