Арендный бизнес Татарстан г. Альметьевск. Выручка 540 тыс.руб. в месяц
Россия, Липецк, Республика Татарстан, Альметьевск
Цена: 41 925 000 ₽
Прибыль: 5 395 000 ₽
Выручка: 6 480 500 ₽
Основные средства: н/п
Материалы: н/п
Недвижимость: 6 480 500 ₽
Год основания: не указан
Персонал: 3
Описание бизнеса
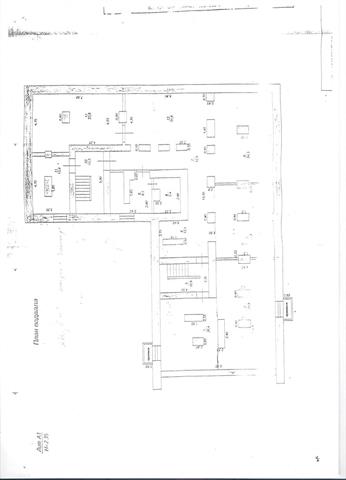
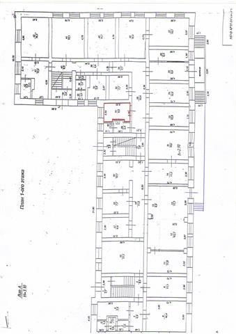
Продается 2х этажное административное здание 1050 кв.м. расположено в центральной части города по ул.Чехова, 33 (бывший паспортный стол). Заселен арендаторами, можно использовать как готовый бизнес. Выручка составляет 540 тысяч рублей в месяц. Здание подходит для представительств компании, офисов, банка, гостиницы, учебного центра, творческих и реставрационных мастерских, медицинского центра и любых других видов бизнеса. Сделан капитальный ремонт здания и коммуникаций. Цена 40 млн. руб. Торг. Рядом: Ленина, Пушкина, Толстого, Татарстан, Валеева, Ризы Фахретдина.
Подробная информация о бизнесе
- Персонал:
- 3
- Активы:
- Земельный участок 1 224 кв.м.
- Рынок и конкуренция:
- Первая линия дороги, центр города.
- Возможности роста:
- Возможность провести газ для отопления.
- Поддержка и обучение:
- Торг.
- Причины продажи:
- Строительство нового объекта
Продавец бизнеса
Ришат


















