Помещение свободного назначения недалеко от центра Марбельи
Испания, Марбелья
Цена: 52 000 000 ₽
Прибыль: не указана
Выручка: не указана
Основные средства: н/п
Материалы: н/п
Недвижимость: н/п
Год основания: не указан
Персонал: не указан
Описание бизнеса
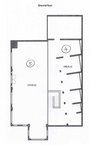
Предлагаются к продаже 2 помещения свободного назначения. Расположены в очень оживленном торговом районе Марбельи. Помещения можно приобрести по отдельности или вместе. Стоимость отдельных помещений в соотвествии с планом: 4 блок 900 000 евро Для 4 блока достроено помещение по офисные нужды, которое не отображено в эскритуре 5 блок 800 000 евро Для 5 блока можно сделать отдельную лестницу в подвал, который тоже можно разделить на 2 части. Так же 5 блок можно приспособить под ресторан, тк он имеет панорамное остекление. Есть площадка под террасу (разрешения на ее использование можно получить) и фонтан. На данный момент оба помещения совмещены. Приобретая 1 блок, хозяин за свои деньги возведет разделительную стену. Рядом есть свободная парковка. Уже есть арендаторы, готовые заключить долговременный договор. Банковская оценка от 16.11.2010 - 2 100 000 евро Подробнее: http://dilani.ru/obj/628 Или по телефону: +7 (495) 669-0044
Подробная информация о бизнесе
- Недвижимость:
- Включена в стоимость
- Рынок и конкуренция:
- Объект расположен на оживленной торговой улице
- Вебсайт:
- www.dilani.ru
Продавец бизнеса
Имя не указано






