Проект: Парковка /93 места/ + /10 парковочных мест / 4 автомойки, СТО,
Болгария, Варна
Цена: 70 000 000 ₽
Прибыль: не указана
Выручка: не указана
Основные средства: н/п
Материалы: н/п
Недвижимость: 70 000 000 ₽
Год основания: не указан
Персонал: не указан
Описание бизнеса
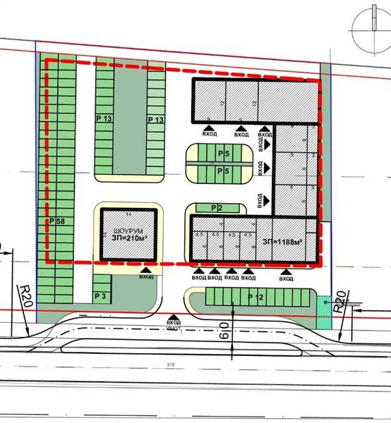
500 000 евро сразу + 500 000 евро/ 50 рассрочек по 10 000 евро в месяц без повышения цены/ 2. Готов к эксплуатации — 2 000 000 евро. Проект: Парковка /93 места/ + /10 парковочных мест / 4 автомойки, СТО, кафе, офисы, выставочный зал — Аэропорт Варна 1. Стоимость проекта /утверждена/ + земельный участок 6250 кв.м — 1 000 000 евро / 160 евро/кв.м — 500 000 евро сразу + 500 000 евро/ 50 рассрочек по 10 000 евро в месяц без повышения цены/ 2. Готов к эксплуатации — 2 000 000 евро. 3. Аренда 0,50 евро/квадратный метр в месяц без НДС / или = 6250*0,50 = 3125 евро — обновляется каждый год с учетом % годовой инфляции. Инвестор: Сэм строит его за свой счет. После начала эксплуатации /максимум до 1 года/ — тогда начинает поступать арендная плата за землю. Срок эксплуатации до 20 лет, после 20 лет аренда прекращается. Пример дохода: 93 машины / на данный момент цена 5 евро в сутки / — 13 950 евро — под 100% в месяц 12* 13 950 = 164 700 евро в год + аренда 4/ ячеек/ автомойки / аренда за ячейку 250 евро/ = 1000 евро = 12*1000 = 12000 + аренда 6 /клеток/ мастерской / аренда мастерской — 700 евро каждая/ — 4200 евро =12*4200= 50400 + аренда кафе-бара – 1000 EUR = 12*1000 = 12 000 + Аренда автосалона /дорогие автомобили и мотоциклы/ – 2000 EUR = 12*2000= 24000 + 4 офиса * 250 евро = 1000 евро = 12*1000= 12 000 евро + Магазин * 1000 евро = 1000 евро= 12* 1000= 12000 евро Общий доход в год: 287 100 евро. Расходы за год; 2500 евро в месяц *12= 30 000 евро / на охрану и персонал автостоянки/
Подробная информация о бизнесе
- Недвижимость:
- Включена в стоимость
- Вебсайт:
- www.investmentsbg.com
Продавец бизнеса
Цанков Група ООО










