Отель на берегу моря Китен Болгария
Болгария, Китен
Цена: 45 435 000 ₽
Прибыль: не указана
Выручка: не указана
Основные средства: н/п
Материалы: н/п
Недвижимость: н/п
Год основания: не указан
Персонал: не указан
Описание бизнеса
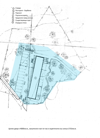
Отель на берегу моря Китен Болгария 630 000 EUR Отель на берегу моря Китен Отель расположен в северной части города. Китен прохладные лиственные леса горы Странджа, а также в 100 метрах. от пляжа Атлиман. Участок находится в регуляции -1753 м2 Postroika массивная трехэтажное здание с зеркальными в области 350 м2 пол, и есть летний ресторан гриль-бар с барбекю 100 м2 Общая реконструкция и модернизация и preoborudvane отель. Отель находится в otlichna funktsionalnost. Отель имеет 2 этажа + 1 цокольный этаж. Он имеет столовую и посетители полностью оборудованная кухня ресторан, отвечающие требованиям системы HACCP. Restorantyorksta и отель категории и полностью лицензирована. Отель находится в 21 комнат + 9 номеров на первом этаже через есть ванная комната Vasella, телевизор + кабельное ТВ, мини-бар, большая терраса в сторону моря и полностью обставлены мебелью, соответствующей 3 звезды, основание имеет собственную парковку. Отель имеет свой собственный веб-сайт, электронную почту и интернет-рекламы в пространстве и туристические каталоги. без НДС, отель продается как отдельная часть компании! Продажа НДС 20%, после продажи на нового владельца, он возвращает 20% НДС месяц - Данные о заговоре в новом плане гр. Китен Интенсивность — 1,2 Плотность — 35% Высота здания — 12 м / 3 этажа (над землей) Это официальная информация от главного архитектора действующего плана на проекте можно немного изменены. - В соответствии с новым планом gr.Kiten перед отелем удалены все бунгало и только зеленую зону, это означает, что отель, который идет в первой строке. - В дополнение к обеспечению цена будет начать, но закончил проект по модернизации и расширению базы для того, чтобы добиться более кровати. Проект не закончен, но новый владелец, если есть интерес, чтобы продолжить его и реализовать его.
Подробная информация о бизнесе
- Активы:
- да
- Рынок и конкуренция:
- не
- Возможности роста:
- да
- Поддержка и обучение:
- да
- Причины продажи:
- другой бизнес
- Вебсайт:
- http://investmentsbg.com/
Продавец бизнеса
Цанков Група ООО
















